0
Découvrir le
bien en photos

Mennecy (91540)
DEUX PIECES NEUF MENNECY- PINEL

Chambre(s)
1
réf : 183

à propos de
ce bien

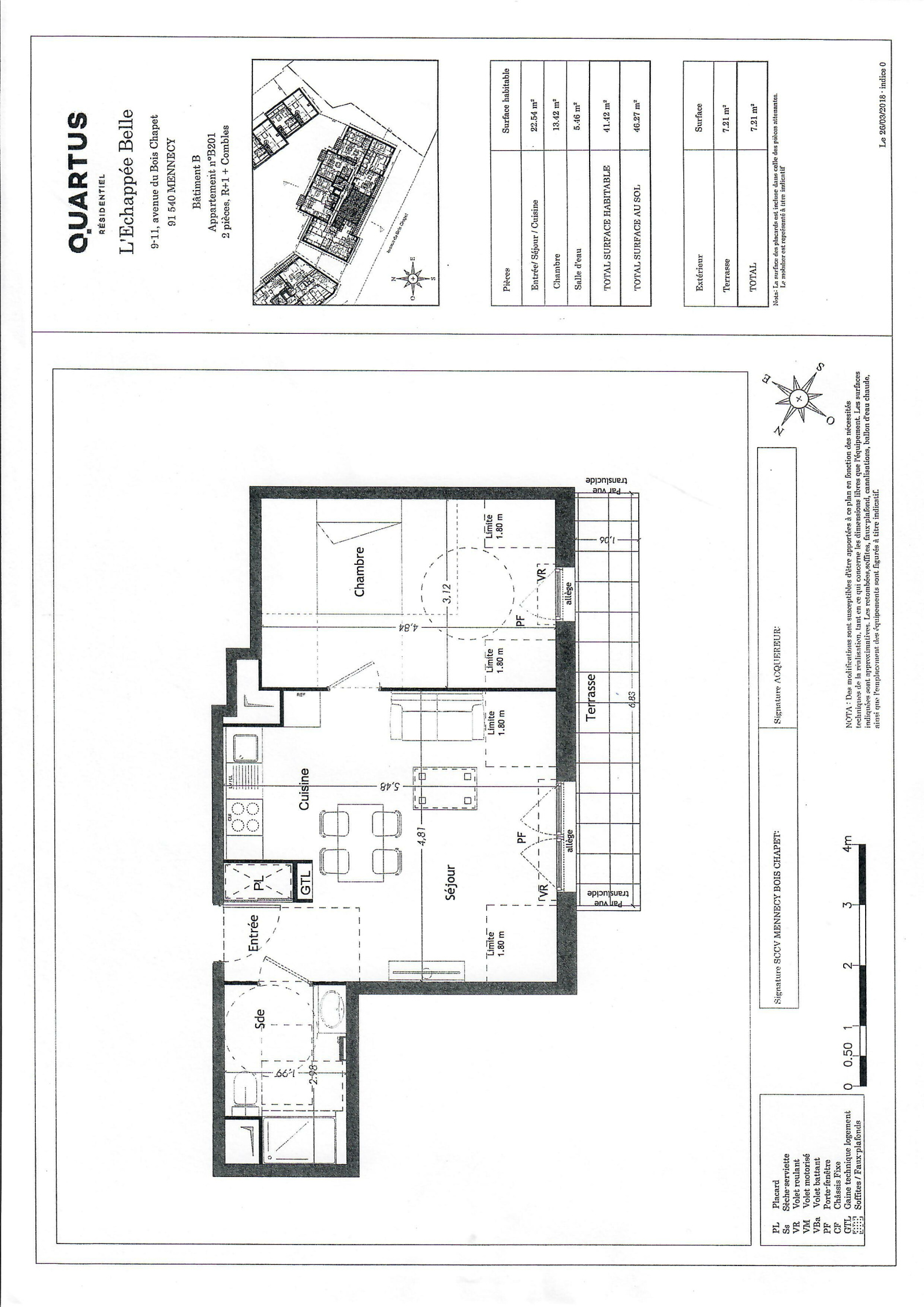
Réduisez vos impôts grâce à ce placement immobilier de qualité avec cet appartement T2 à Mennecy au dernier étage. Dans un immeuble neuf de standing dont la livraison est prévue pour Fin Janvier 2022 , conforme aux normes d'accessibilité PMR et ELIGIBLE DISPOSIITF PINEL .Il se trouve au deuxième niveau ; le bâtiment est équipé d'un ascenseur, d'espaces verts et d'aires de jeux communales non privatifs mais quel confort ! La tranquillité des occupants est assurée grâce aux fenêtres à double vitrage. Est conforme aux dernières normes de construction et d'isolation label BBC garantissant des économies d'énergie au quotidien. L'espace intérieur est constitué d'une entrée et salon de 22.54m², une chambre et une salle d'eau avec wc. La surface plancher intérieure sort à 46.27m² et 41.42 m² loi Carrez. Pour profiter de l'extérieur, vous disposerez d'un balcon extérieur de 7.21m², L'habitation s'accompagne de deux places de parking en sous sol. . ESG Immobilier se fera un plaisir de vous aider si vous souhaitez acquérir ce bien en toute sérénité et pour la location et la gestion de celui ci, profitez de toute notre expertise et d'un offre combinée . IDEAL premier investissement à dispositif fiscal.

Descriptif

  • Code postal
    91540
  • Surface habitable (m²)
    41,42 m²
  • Surface loi Carrez (m²)
    41,42 m²
  • Nombre de chambre(s)
    1
  • Nombre de pièces
    2
  • Etage
    2
  • Ascenseur
    OUI

Financier

  • Prix de vente
    193 000 €
  • Les honoraires d'agence seront intégralement à la charge du vendeur
     

Plus d'infos

  • Nb de salle d'eau
    1
  • Cuisine
    Américaine
  • Interphone
    OUI
  • Visiophone
    OUI
  • Balcon
    OUI
  • Terrasse
    NON
  • Cave
    NON
  • Année de construction
    2021

Copropriété

  • Copropriété
    OUI
  • Lot n°
    117
  • nombre de lots
    57
  • plan de sauvegarde
    NON
  • statut du syndic
    pas de procédure en cours
  • Commerces et santé
  • Loisirs
  • Ecoles
  • Transports
  • Pratique
Nos
outils

Bilan
énergétique

DPE GES

Ce bien
m'intéresse